Вернуться к выбору квартиры

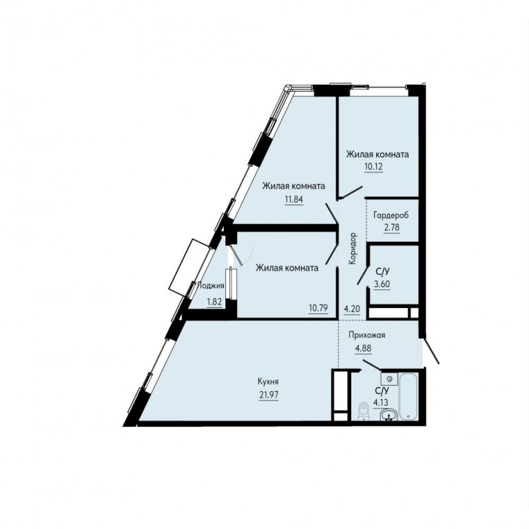
Трехкомнатная квартира №267

Планировка квартиры
План этажа
Площадь 75,22 м2
Срок сдачи 4 квартал 2027 г.
Этаж/этажность 23/30
Отделка Чистовая

14 446 820

Оставить заявку в отдел продаж

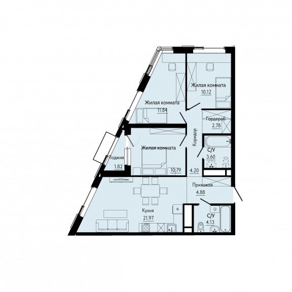
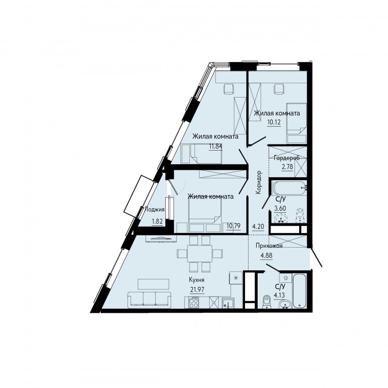
Варианты организации пространства