Вернуться к выбору квартиры

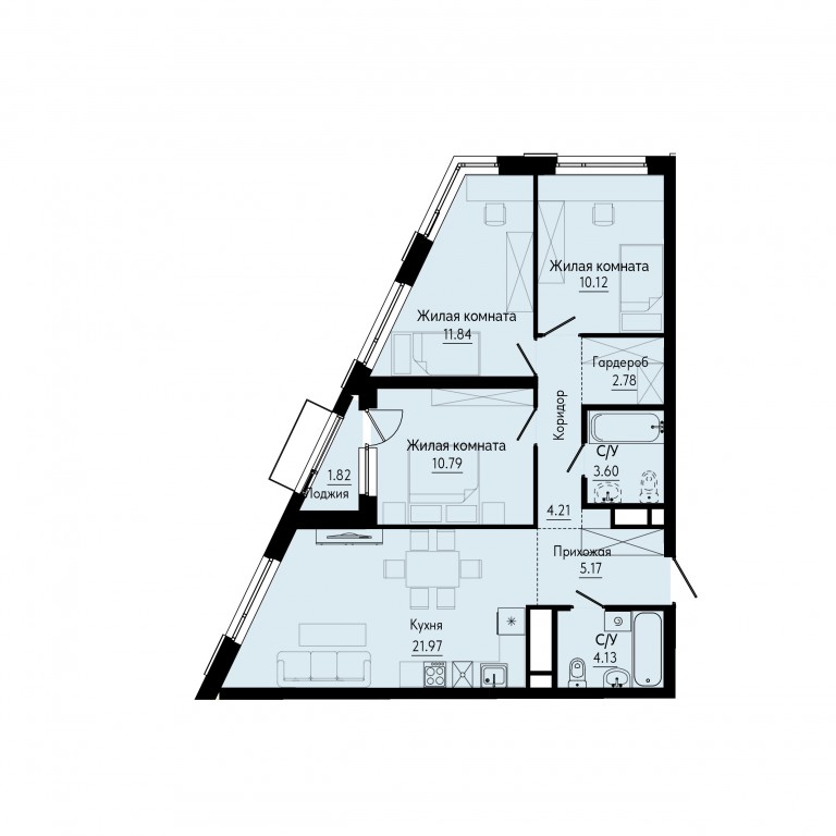
Трехкомнатная квартира №159

Планировка квартиры
План этажа
Площадь 75,52 м2
Срок сдачи 4 квартал 2027 г.
Этаж/этажность 14/30
Отделка Чистовая

13 914 788

Оставить заявку в отдел продаж

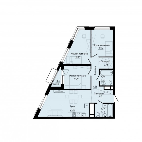
Варианты организации пространства